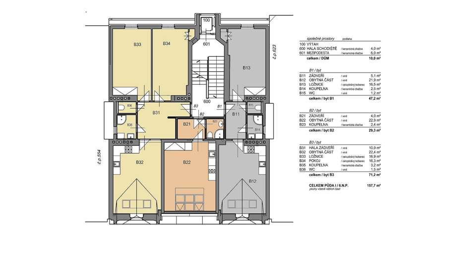
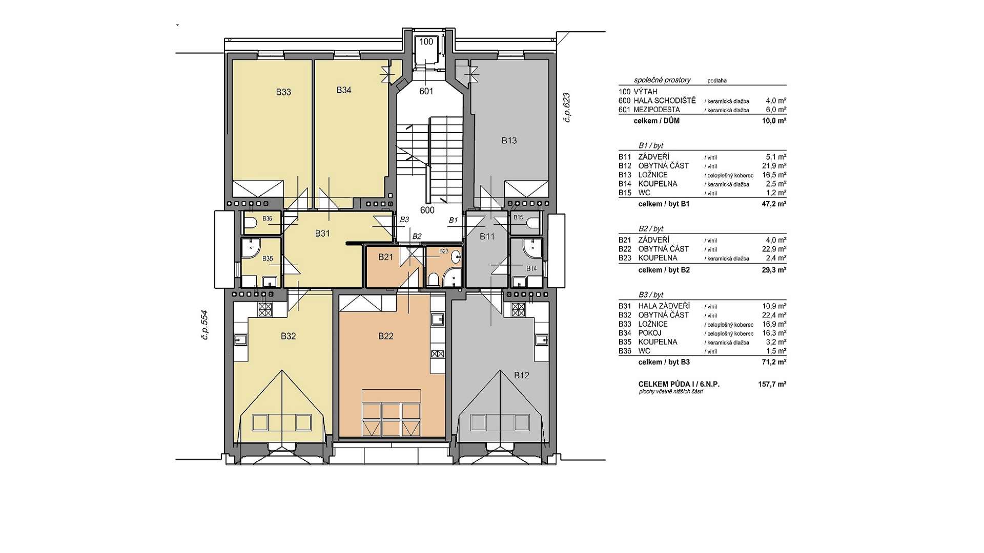
Byt č. 18